Unit type
Doesn't matter
domyhouses
domyapartments
domylands
domycommercial
domyother properties
Offer type
Doesn't matter
For sale
For rent
Auction
Share
Region
Doesn't matter
Karlovarský kraj
Plzeňský kraj
Jihočeský kraj
Ústecký kraj
Liberecký kraj
Moravskoslezský kraj
Zlínský kraj
Hl. město Praha
Olomoucký kraj
Královéhradecký kraj
Pardubický kraj
Jihomoravský kraj
Vysočina
Středočeský kraj

Apartment for sale, 2+kt (1 bedroom), Praha 2 - Vinohrady

Praha 2 - Vinohrady, 12 000, Polská 1560/7

27,990,000 CZK (real estate) Price

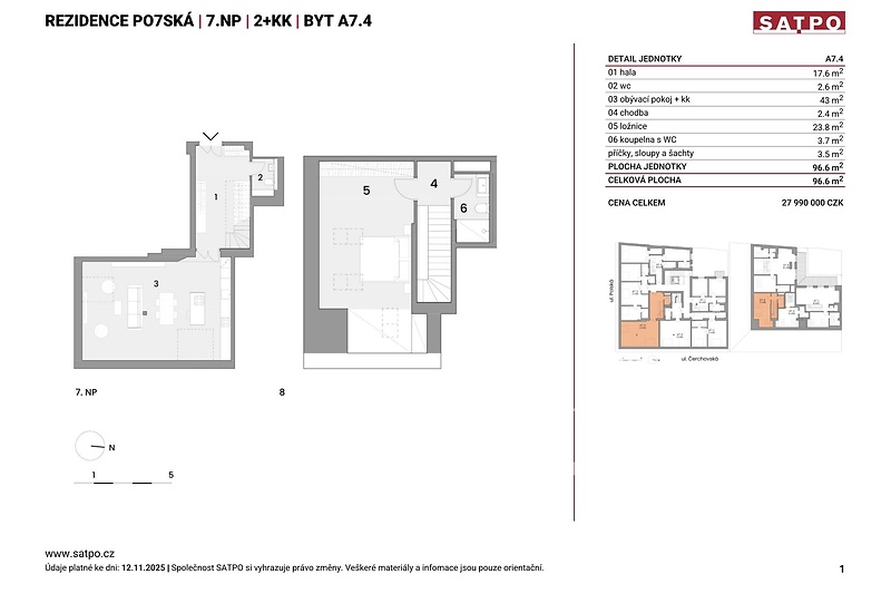
Apartment for sale / 2+kt (1 bedroom) / 97 m2 - Apartments for sale 2+kt (1 bedroom) for the price of 27,990,000 CZK. This property - 2+kt (1 bedroom) is located in Praha 2. In private ownership. The size of the property is 97 m2.

Price
27,990,000 CZK
Property type
2+kt (1 bedroom)
Usable area
97 m2
ID number
POL_A7.4a
Updated
08/10/2025
Active days
29
Energy efficiency rating
View
Ownership
private
Building type
brick
Condition
new building
Floor
7
Building
brick
Floor number
7
Elevator
yes
Energy performance of building
C
According to ordinance
č. 78/2013 Sb.
Energy performance indicator
95.70
Active
yes

Request property

By submitting this form, you agree to the privacy policy

SATPO klientské centrumrealitní makléř

info@satpo.cz

SATPO management, s.r.o.

Holečkova 3331/35, 15000, Praha 5

Cookies